Pytanie 1
Najbardziej powszechną metodą zapobiegania wzrostowi bakterii Legionelli w systemie c.w.u. jest regularne podgrzewanie wody w zbiorniku i instalacji, tak aby temperatura wody w miejscach czerpania wynosiła
Wynik: 31/40 punktów (77,5%)
Wymagane minimum: 20 punktów (50%)
Najbardziej powszechną metodą zapobiegania wzrostowi bakterii Legionelli w systemie c.w.u. jest regularne podgrzewanie wody w zbiorniku i instalacji, tak aby temperatura wody w miejscach czerpania wynosiła
Przedstawiony na rysunku znak ostrzega przed

Od czego zależy moc wiatru?
Jaką moc osiąga moduł fotowoltaiczny o powierzchni 0,8 m2 i sprawności 15% przy naświetlaniu promieniowaniem słonecznym o mocy 660 W/m2?
Przemieszczający się cień przez znaczną część dnia nad modułami fotowoltaicznymi skutkuje
Aby chronić zbiornik c.w.u. przed korozją, zaleca się stosowanie
Jakimi metodami można dokonać pomiaru strat ciepła w ogrzewanym obiekcie?
Jednym z elementów warunkujących gwarancję na zbiornik do magazynowania wody w słonecznej instalacji grzewczej jest
Zainstalowano kocioł do spalania paliw stałych o nominalnej mocy 200 kW. Absolutnie zabronione jest nawet próba uruchomienia kotła w sytuacji, gdy
Histereza regulatora temperatury grzałki w zbiorniku wynosi 2°C, a temperatura docelowa została ustawiona na 40°C. Regulator wyłączy grzałkę i ponownie ją włączy przy temperaturach wody w zbiorniku odpowiednio:
W jakim dokumencie opisane są zasady użytkowania kotłów na biomasę?
Jak dokonuje się regulacji przepływu czynnika solarnego w systemie?
Kotły na biomasę są połączone z kominem dymnym. N accumulation of soot may result in improper combustion and carbon monoxide emissions. Czyszczenie komina powinno być realizowane
Zakres prędkości znamionowej wiatru dla turbin wiatrowych z poziomą osią wynosi
Pompa obiegowa o mocy 80 W, działająca przez 15 godzin każdego dnia od 1 października do 28 lutego, zużyła energię elektryczną
Wymiana czynnika solarnego nie jest wymagana w instalacji usytuowanej w III strefie klimatycznej, jeżeli po jego analizie ustalono, że wartość pH oraz mrozoodporność wynoszą odpowiednio
Kontrola instalacji solarnej powinna być wykonywana co
Co może oznaczać wysoka temperatura kolektora słonecznego przy jednoczesnej niskiej temperaturze wody w zbiorniku po dłuższym okresie oczekiwania?
Zjawisko uszkodzenia powierzchni łopatek wirnika turbiny wodnej spowodowane uderzaniem bąbelków powietrza to
Jaka jest minimalna prędkość wiatru, która spowoduje automatyczne wyłączenie siłowni wiatrowej z poziomą osią, ustawioną równolegle do kierunku wiatru?
W trakcie inspekcji technicznej pompy ciepła dokonuje się oceny
Producent wskazuje współczynnik efektywności cieplnej COP = 4,3 w punkcie operacyjnym A2/W35. Co to oznacza dla podanego COP?
Jakimi jednostkami wyraża się moc znamionową pieców kominkowych?
Ciąg w kominie z grawitacyjnym odpływem spalin z kotła na biomasę jest przede wszystkim uzależniony od
Odnawialne źródło energii to źródło, które w procesie przetwarzania korzysta m.in. z energii:
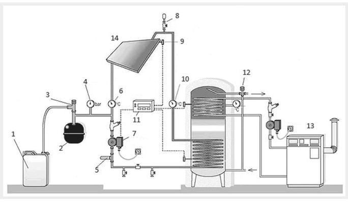
Podczas przeglądu instalacji solarnej stwierdzono sygnalizację błędu przez sterownik, który na rysunku oznaczony jest numerem

Jakie środki ochrony przed porażeniem prądem są wymagane w instalacji z układem TN-S?
Lokalizację tzw. gorących punktów w działających modułach fotowoltaicznych można dokładnie ustalić za pomocą
Na podstawie rysunku przedstawiającego ekran sterownika układu kolektora słonecznego, temperatura czynnika na powrocie do kolektora wynosi

Pompa ciepła o regulowanej wydajności, będąca częścią instalacji do ogrzewania c.w.u. i c.o., przez 10 dni pobierała średnio moc 2,5 kW z sieci elektrycznej. Jaki wskaźnik efektywności energetycznej ma ta pompa, jeśli w tym samym okresie przekazała 1800 kWh ciepła do c.w.u. i c.o.?
Podczas eksploatacji pompy ciepła technik serwisowy dostrzegł wyciekające krople wody z króćca oznaczonego "Odpływ kondensatu". Co może być przyczyną tego zjawiska?
Jaką minimalną głębokość powinno się stosować w województwie podlaskim przy układaniu poziomego wymiennika gruntowego, aby zapobiec naturalnemu przemarzaniu w jego bezpośrednim otoczeniu?
W trakcie inwentaryzacji systemu ciepłej wody użytkowej wykonano pomiary, a aby stworzyć rysunki w skali 1:100, konieczne jest ustalenie długości poszczególnych rur. Zmierzona długość rury łączącej punkt czerpania z pionem wynosi 26 m. Na planie kondygnacji będzie to segment o długości
Znak oznaczający, że wyrób wykonano zgodnie z Polskimi Normami, przedstawia rysunek

Jak długo maksymalnie może być używana anoda magnezowa w zasobniku c.w.u. systemu solarnego działającego w typowych warunkach?
Kosztorys, który umożliwia zamawiającemu określenie wartości planowanej inwestycji, to kosztorys
W trakcie eksploatacji instalacji fotowoltaicznej typu off-grid zaleca się, nie rzadziej niż raz na 6 miesięcy dokonać pomiaru i analizy napięcia baterii akumulatorów. Na jaki zakres należy ustawić miernik napięcia, aby poprawnie zmierzyć napięcie akumulatora przedstawionego na rysunku?

Ciśnienie robocze w najwyższym punkcie systemu solarnego do ogrzewania powinno wynosić 1 bar. Każdy metr wysokości statycznej instalacji zwiększa ciśnienie robocze na manometrze zainstalowanym w grupie pompowej o 0,1 bar. Jakie powinno być ciśnienie robocze na manometrze dla systemu o wysokości statycznej 10 m?
Z dokumentacji dotyczącej pompy ciepła wynika, że napięcie zasilające może się różnić w zakresie +/- 5% od wartości nominalnej w polskiej sieci elektroenergetycznej. Pomiar napięcia fazowego wykazał 237 V. Jakie jest zmierzone napięcie zasilania?
Na dachu jednorodzinnego domu zainstalowano 4 panele słoneczne, z których każdy ma powierzchnię absorbera wynoszącą 1,80 m2 oraz powierzchnię brutto (w obrysie) 2,2 m2. Dla jednego kolektora średni dzienny uzysk energii z powierzchni czynnej wynosi 3,4 kWh/m2. Jaki będzie dzienny uzysk energii z całej instalacji?