Z przedstawionego przekroju budynku wynika, że wysokość w świetle drugiej kondygnacji wynosi




| Instrukcja przygotowanie gładzi szpachlowej |
|---|
| – przewidzianą do zużycia ilość suchej masy szpachlowej wsypać do pojemnika z wodą w ilości około 1 kg suchej masy na 0,4 l wody ciągle mieszając – zawartość pojemnika starannie wymieszać, najlepiej przy pomocy mieszadła wolnoobrotowego aż do uzyskania jednorodnej, łatwej do nakładania masy bez grudek – gotową masę po upływie około 5 minut ponownie wymieszać – zarobiona masa szpachlowa przydatna jest do stosowania około 2 godz. – każdorazowe zarobienie masy wykonywać używając czystych narzędzi i opakowań |
| Cennik paneli podłogowych | ||||
|---|---|---|---|---|
| lp. | klasa | sposób montażu | cena zł/m² | |
| 1 | AC 1 | klej | 18,00 | |
| klik | 22,00 | |||
| 2 | AC 2 | klej | 20,00 | |
| klik | 24,00 | |||
| 3 | AC 3 | klej | 25,00 | |
| klik | 30,00 | |||
| 4 | AC 4 | klej | 35,00 | |
| klik | 45,00 | |||
| Dane techniczne kleju gipsowego | |
|---|---|
| Klej gipsowy spełnia wymagania: | PN-EN 14496 |
| Zużycie: | 4 kg/m² płyty |
| Czas zużycia zaprawy: | 20 minut |
| Temperatura wykonywania prac: | +5 °C do +25 °C |
| Reakcja na ogień: | A1 |
| Opakowania: | 10 kg, 20 kg |
| Klasy płytek ceramicznych ze względu na nasiąkliwość | ||||
|---|---|---|---|---|
| nasiąkliwość % | E≤3 | 3<E≤6 | 6<E≤10 | E>10 |
| klasa | AI | AIIa | AIIb | AIII |
| cena zł/m² | 50,00 | 42,00 | 30,00 | 25,00 |
| Zapotrzebowanie materiałowe na 1 m3 ściany | ||||
|---|---|---|---|---|
| Lp. | Materiał | Jednostka | Zużycie | Cena jednostkowa [zł] |
| 1 | Płyta g-k | m2 | 1,00 | 8,93 |
| 2 | Profil CW | mb | 1,80 | 4,90 |
| 3 | Profil UW | mb | 0,70 | 4,16 |
| 4 | Taśma uszczelniająca | mb | 1,10 | 0,60 |
| 5 | Masa szpachlowa | kg | 0,25 | 5,19 |
| Klasa dokładności wykonania | Dopuszczalne odchylenia powierzchni i krawędzi od kierunku pionowego | ||
|---|---|---|---|
| Wielkość odchyleń | |||
| w pomieszczeniach o wysokości do 3,50 m | w pomieszczeniach o wysokości ponad 3,50 m | ||
| 1 | nie więcej niż 1,5 mm na 1 m i nie więcej niż 3,0 mm na całej wysokości | nie więcej niż 1,5 mm na 1 m i nie więcej niż 4,0 mm na całej wysokości | |
| 2 | nie więcej niż 2,0 mm na 1 m i nie więcej niż 4,0 mm na całej wysokości | nie więcej niż 2,0 mm na 1 m i nie więcej niż 6,0 mm na całej wysokości | |



| Szczegółowa Specyfikacja Techniczna (fragment) | |
| Farba chlorokauczukowa do gruntowania przeciwrdzewna cynkowa 70% szara, metaliczna | |
| – wydajność – 15÷16 m2/dm3 | |
| – max. czas schnięcia – 8 h |

| Wyciąg z zasad przedmiarowania robót tapeciarskich |
|---|
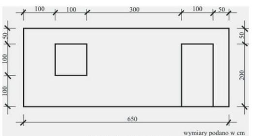
| Tapetowanie obmierza się według rzeczywistych wymiarów tapetowanych powierzchni, a wynik podaje się w m2. Z obliczonej powierzchni potrąca się powierzchnię otworów i obszarów nietapetowanych, jeżeli jest ona większa niż 0,25 m2. |

| Wytyczne dotyczące wykonywania i odbioru płyt podłogowych (fragment) |
| Dopuszczalne odchylenie od poziomu powierzchni podkładu podłogowego z płyt gipsowo-kartonowych wynosi 2 mm/m i nie może przekroczyć 5 mm na całej długości lub szerokości podkładu. |
| Dane techniczne kleju gipsowego | |
|---|---|
| Klej gipsowy spełnia wymagania: | PN-EN 14496 |
| Zużycie: | 4 kg/m² płyty |
| Czas zużycia zaprawy: | 20 minut |
| Temperatura wykonywania prac: | +5 °C do +25 °C |
| Reakcja na ogień: | A1 |
| Opakowania: | 10 kg, 20 kg |