Filtrowanie pytań
Wykonywanie robót murarskich …
A. wzmocnieniu konstrukcji klamrowo i ponownym otynkowaniu
B. nasączeniu pękniętych miejsc wodą i uzupełnieniu ubytków zaprawą taką jak tynk
C. wprowadzeniu zaczynu cementowego pod ciśnieniem
D. uzupełnieniu ubytków zaprawą cementową
Montaż konstrukcji budowlanych
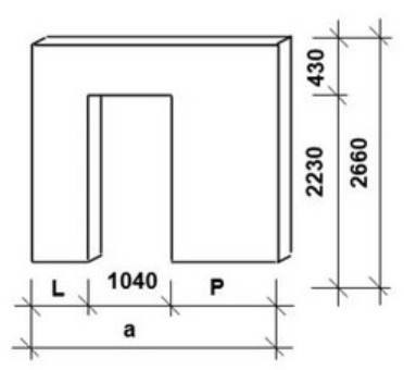
Korzystając z karty katalogowej producenta określ, w jakiej odległości od lewej krawędzi znajduje się otwór drzwiowy w płytach W4.2.
| ŚCIANY WEWNĘTRZNE NOŚNE O GRUBOŚCI 15 cm | |||
|---|---|---|---|
| Symbol elementu | Wymiary elementu [mm] | masa montażowa [kg] | |
| a | L | ||
| W 3.1 | 1700 | 175 | 1080 |
| W 4.2 | 2300 | 475 | 1720 |
| W 4.3 | 2300 | 575 | 1720 |
| W 5.1 | 2900 | 175 | 2370 |
| W 5.3 | 2900 | 775 | 2370 |
| W 6.2 | 3500 | 475 | 3010 |

A. 775 mm
B. 475 mm
C. 575 mm
D. 175 mm
Organizacja i kontrola robót …
Jaki typ fundamentów kwalifikuje się jako posadowienia bezpośrednie realizowane w wykopie otwartym?
A. Pale żelbetowe monolityczne
B. Studnie fundamentowe
C. Pale żelbetowe prefabrykowane
D. Płyty fundamentowe
Wykonywanie robót murarskich …
Korzystając z instrukcji producenta, określ liczbę worków gipsu, która będzie potrzebna do uzyskania 180 litrów zaprawy.
| Instrukcja producenta | |
|---|---|
| Gips tynkarski ręczny | |
| OPAKOWANIE: worki papierowe 25 kg | |
| DANE TECHNICZNE: proporcje składników 15 l wody na 25 kg gipsu tynkarskiego ręcznego | |
| WYDAJNOŚĆ: na 120 l zaprawy – 100 kg gipsu | |
| ZUŻYCIE: 0,85 kg na 1m2 na każdy 1 mm grubości tynku |
A. 6 worków.
B. 8 worków.
C. 5 worków.
D. 4 worki.
Wykonywanie robót murarskich …
Aby nałożyć tynk zwykły na suficie, jakie narzędzia są wymagane?
A. czerpak tynkarski i packa
B. deska z trzonkiem oraz packa
C. deska z trzonkiem i kielnią
D. kielnia i listwa tynkarska
Organizacja i kontrola robót …
Warstwę podkładową o grubości 10÷15 cm z betonu klasy C8/10 (nazywanego chudym betonem), umieszcza się pomiędzy
A. fundamentem a podłożem gruntowym
B. ścianą nośną a stropem
C. ścianą nośną a nadprożem
D. fundamentem a ścianą fundamentową
Wykonywanie robót zbrojarskic…
Na podstawie danych podanych w tabeli wskaż typ betoniarki, którą należy użyć, aby przygotować 160 m3 betonu w ciągu 8 godzin roboczych.
| Typ betoniarki | Pojemność robocza | Wydajność techniczna m³/h | Moc silnika kW |
|---|---|---|---|
| BP-135 o mieszalniku nieruchomym | 135 | do 4,0 | 2,8 |
| BP-250 przeciwbieżna | 250 | 3,0÷5,0 | 4,5 |
| BPM-250 | 250 | do 7,0 | 7,0 |
| BP-III-500 AB | 500 | 7,0÷10,0 | 10,0 |
| BP-1000 | 1000 | 20,0÷23,0 | 26,3 |
A. BP-III-500 AB
B. BP-1000
C. BP-250 przeciwbieżna
D. BPM-250
Montaż konstrukcji budowlanych
Jakie urządzenie używa się do określenia odległości między punktami istotnymi w konstrukcji stalowej?
A. Węgielnicę
B. Teodolit
C. Dalmierz
D. Poziomnicę
Wykonywanie robót murarskich …
Na rysunku przedstawiono rzut pomieszczenia, w którym zaplanowano wyburzenie ściany.
Oblicz powierzchnię ściany przeznaczonej do rozbiórki, jeżeli wysokość pomieszczenia wynosi 2,70 m.
Wymiary [cm]

A. 6,48 m2
B. 7,56 m2
C. 4,59 m2
D. 6,75 m2
Wykonywanie robót murarskich …
W ścianie z cegieł przeznaczonej do remontu pomierzono pęknięcia. Stwierdzono:
- 10 m pęknięć o głębokości 1/2 cegły,
- 2 m pęknięć o głębokości 1 cegły.
Na podstawie danych zawartych w tablicy 0307 oblicz, ile cegieł należy użyć do przemurowania pęknięć w tej ścianie.
| Nakłady na 1 m pęknięcia | tablica 0307 (wyciąg z KNR nr 4-01) | ||||
| Lp. | Wyszczególnienie | J. m. | Przemurowanie ciągłe pęknięć przy użyciu zaprawy cementowej w ścianach | ||
| głębokość pęknięć w cegłach | |||||
| ½ | 1 | 1½ | |||
| 01 | Robocizna | r-g | 3,62 | 5,23 | 9,05 |
| 20 | Cegły budowlane pełne | szt. | 14 | 29 | 47 |
| 21 | Cement portlandzki | kg | 3,88 | 7,34 | 12,95 |
A. 318 szt.
B. 564 szt.
C. 516 szt.
D. 198 szt.
Organizacja i kontrola robót …
Zgodnie z KNR 2-01 norma czasu pracy pracowników na oczyszczenie terenu z resztek po wykarczowaniu z transportem wynosi 3,06 r-g/100 m2. Ilu pracowników należy zaangażować do oczyszczenia terenu o wielkości 1600 m2, jeśli według harmonogramu te prace muszą być zrealizowane w ciągu dwóch 8-godzinnych dni roboczych?
A. 4 robotników
B. 7 robotników
C. 3 robotników
D. 6 robotników
Organizacja i kontrola robót …
Korzystając z danych zawartych w tabeli wskaż stan techniczny elementów wykończeniowych obiektu, jeżeli w trakcie kontroli stwierdzono ich zużycie w 50%.
| Stan techniczny elementu obiektu | Zużycie elementów obiektu | |||
|---|---|---|---|---|
| Elementy konstrukcyjne | Elementy wykończeniowe | Instalacje sanitarne | Instalacje elektryczne i teletechniczne | |
| A. zadowalający | 0-25% | 0-30% | 0-10% | 0-10% |
| B. średni | 26-40% | 31-45% | 11-20% | 11-15% |
| C. zły | 41-50% | 46-60% | 21-30% | 16-20% |
| D. awaryjny | >50% | >60% | >30% | >20% |
A. C.
B. D.
C. B.
D. A.
Wykonywanie robót murarskich …
Jakie składniki mieszanki betonowej można podgrzać w trakcie jej przygotowywania w temperaturze poniżej +5 °C?
A. Piasek i wodę
B. Cement oraz wodę
C. Cement i wapno
D. Wapno oraz piasek
Montaż konstrukcji budowlanych
Jakie elementy powinny być uwzględnione w strukturze przegubowej budynku, aby zapewnić sztywność i stabilność całej konstrukcji w obliczu działania wiatru?
A. Odciągi linowe
B. Tężniki pionowe
C. Stałe przypory
D. Ściany oporowe
Montaż konstrukcji budowlanych
Na którym rysunku przedstawiono kotwę fajkową?

A. C.
B. A.
C. B.
D. D.
Wykonywanie robót murarskich …
Na podstawie informacji zamieszczonych w tabeli określ maksymalną dopuszczalną grubość tynku pospolitego dwuwarstwowego na siatce stalowej.
| Rodzaj tynku | Grubość tynku [mm] | Dopuszczalne odchyłki grubości [mm] |
|---|---|---|
| pospolity dwuwarstwowy na podłożu z prefabrykowanych płyt betonowych | 5 | +3 |
| pospolity dwuwarstwowy na stalowej siatce | 20 | ±3 |
| pospolity trójwarstwowy na podłożu gipsowym | 12 | -4 +2 |
| pospolity trójwarstwowy na podłożu betonowym | 18 | -4 +2 |
A. 22 mm
B. 20 mm
C. 23 mm
D. 17 mm
Organizacja i kontrola robót …
Urządzenie przedstawione na rysunku stosuje się do

A. zacierania powierzchni betonu.
B. transportu mieszanki betonowej
C. malowania natryskowego.
D. nakładania tynku.
Montaż konstrukcji budowlanych
Który parametr przedstawionej na rysunku spoiny oznaczono symbolem literowym L?

A. Wysokość spoiny.
B. Szerokość spoiny.
C. Grubość spoiny.
D. Długość spoiny.
Wykonywanie robót zbrojarskic…
Do wykonywania drobnych wyrobów betonowych, według opisu zawartego w przedstawionej tabeli, należy stosować cement
| Rodzaj cementu | Zastosowanie | |
|---|---|---|
| A. | portlandzki | konstrukcje żelbetowe, prefabrykacja, przekrycia dachowe, elementy elewacyjne i drobnowymiárowe |
| B. | portlandzki żużlowy | dachówka cementowa, kostka brukowa, krawężniki, elementy prefabrykowane |
| C. | portlandzki wieloskładnikowy | prace murarskie i tynkarskie |
| D. | portlandzki popiołowy | wyroby i konstrukcje narażone na agresję siarczanową, zapory wodne, obiekty morskie |
A. A.
B. D.
C. C.
D. B.
Wykonywanie robót zbrojarskic…
Świeży beton umieszczony w temperaturze otoczenia około +20°C powinien być chroniony przed zbyt szybkim wysychaniem w sposób
A. położenie warstwy drobnego piasku na jego powierzchni
B. częste nawadnianie jego powierzchni wodą
C. nałożenie preparatu antyadhezyjnego na jego powierzchnię
D. obfite polewanie wodą powierzchni deskowania
Organizacja i kontrola robót …
Na rysunku przedstawiono połączenie elementów stalowych za pomocą spoiny

A. czołowej V.
B. pachwinowej jednostronnej.
C. czołowej 1/2V.
D. pachwinowej dwustronnej.
Montaż konstrukcji budowlanych
Weryfikacja precyzji zainstalowania okładzin elewacyjnych budynków stalowych ma na celu ustalenie, czy okładziny
A. chronią konstrukcję do poziomu gruntu
B. są umocowane w jednej płaszczyźnie
C. są pokryte odpowiednią farbą antykorozyjną
D. są dopasowane kolorystycznie do innych elementów
Organizacja i kontrola robót …
Aby zagwarantować prawidłowy przepływ powietrza w przestrzeni pomiędzy ocieploną konstrukcją dachu a jego pokryciem, dachówki powinny być układane
A. na łatach zamocowanych do krokwi
B. na łatach zamocowanych do kontrłat
C. bezpośrednio na krokwiach
D. bezpośrednio na kontrłatach
Wykonywanie robót murarskich …
Który z materiałów budowlanych przedstawia oznaczenie rysunkowe?

A. Tworzywo sztuczne.
B. Tynk.
C. Żelbet.
D. Szkło.
Wykonywanie robót murarskich …
Na którym rysunku przedstawiono lico muru, który wykonano w wiązaniu krzyżykowym?

A. A.
B. C.
C. D.
D. B.
Organizacja i kontrola robót …
Na podstawie przedstawionego wyciągu z instrukcji montażu określ niezbędną liczbę podpór montażowych przy rozpiętości modularnej stropu Teriva równej 6,0 m.
| Instrukcja montażu stropu Teriva (wyciąg) | |
| 5.4. Podpory montażowe | przy układaniu belek stropowych na budowie należy stosować podpory montażowe rozmieszczone w rozstawie nie większym niż 2,0 m, tzn.: - przy rozpiętości modularnej stropu l ≤ 4,0 m – 1 podpora, - przy rozpiętości modularnej stropu 4,0 m < l ≤ 6,0 m – 2 podpory, - przy rozpiętości modularnej stropu 6,0 < l ≤ 8,0 m – 3 podpory, - przy rozpiętości modularnej stropu l > 8,0 m – 4 podpory. |
A. 1 podpora.
B. 4 podpory.
C. 3 podpory.
D. 2 podpory.
Wykonywanie robót murarskich …
W jakim momencie powinno się przeprowadzać odbiór robót murarskich?
A. Przed zakończeniem tynków i przed zamontowaniem ościeżnic okien i drzwi
B. Po zakończeniu tynków oraz zamontowaniu ościeżnic okien i drzwi
C. Przed zakończeniem tynków, ale po zamontowaniu ościeżnic okien i drzwi
D. Po zakończeniu tynków, lecz przed zamontowaniem ościeżnic okien i drzwi
Wykonywanie robót zbrojarskic…
Pręt nośny prosty belki jednoprzęsłowej oznaczono na rysunku cyfrą

A. 1
B. 4
C. 3
D. 2
Wykonywanie robót zbrojarskic…
Jak należy przygotować deskowanie, aby zredukować przyczepność betonu do jego powierzchni?
A. Pokryć lepikiem asfaltowym
B. Zamoczyć zaczynem cementowym
C. Zamoczyć ciepłą wodą
D. Pokryć płynem antyadhezyjnym
Organizacja i kontrola robót …
Na podstawie przedstawionego wyciągu ze specyfikacji technicznej, określ maksymalną grubość warstwy gruntu, którą można zagęszczać płytami wibracyjnymi.
| Specyfikacja techniczna ST-01 – roboty ziemne (wyciąg) |
| Jeżeli w dokumentacji projektowej nie przewidziano innego sposobu zagęszczania gruntu przy zasypywaniu wykopów, to układanie i zagęszczanie gruntu powinno być wykonywane warstwami o grubości dostosowanej do przyjętego sposobu zagęszczania i wynoszącej: a) nie więcej niż 25 cm przy stosowaniu ubijaków ręcznych i wałowaniu, b) nie więcej niż 30 cm przy ubijaniu urządzeniami wibracyjnymi, np.: płytami wibracyjnymi. Jeżeli w zasypywanym wykopie znajduje się rurociąg, to do wysokości ok. 40 cm ponad górną krawędź rurociągu należy go pozasypywać i zagęszczać ręcznie. |
A. 40 cm
B. 35 cm
C. 25 cm
D. 30 cm
Wykonywanie robót zbrojarskic…
Na podstawie przekroju poprzecznego połączenia ściany zewnętrznej ze stropem Teriva określ wymiary wieńca stropowego.

A. 30×36,5 cm
B. 25×30 cm
C. 11,5×30 cm
D. 20×24 cm
Wykonywanie robót zbrojarskic…
Odbiór finalnego szkieletu zbrojenia, udokumentowany zapisem w dzienniku budowy, powinien odbyć się po
A. przeprowadzeniu transportu na miejsce zakupu
B. oczyszczeniu oraz przygotowaniu go w warsztacie zbrojarskim
C. umieszczeniu go w deskowaniu przed wylaniem betonu
D. złączeniu go w warsztacie zbrojarskim
Wykonywanie robót murarskich …
W jakim wiązaniu wykonano mur przedstawiony na rysunku?

A. Główkowym.
B. Pospolitym.
C. Krzyżykowym.
D. Wozówkowym.
Wykonywanie robót murarskich …
Aby zrealizować izolację termiczną ścian, należy wykorzystać
A. wełnę mineralną, masy bitumiczne
B. styropian, wełnę mineralną
C. styropian, papę
D. wełnę mineralną, emulsję asfaltową
Organizacja i kontrola robót …
Na podstawie zamieszczonego fragmentu przedmiaru robót, sporządzonego w programie do kosztorysowania, odczytaj ilość robót związanych z wykonaniem izolacji przeciwwilgociowych powłokowych pionowych wykonywanych na zimno z roztworu asfaltowego.

A. 51,48 m2
B. 141,08 m2
C. 212,64 m2
D. 107,22 m2
Organizacja i kontrola robót …
Osprzęt, który oddziela grunt i wypełnia się pod wpływem swojej wagi oraz siły naciągu liny, stanowi część koparki
A. przedsiębiernej
B. zbierakowej
C. chwytakowej
D. podsiębiernej
Wykonywanie robót zbrojarskic…
Aplikację mieszanki betonowej pod ciśnieniem sprężonego powietrza na powierzchnię należy realizować przy użyciu
A. głowicy wodnej
B. pompy próżniowej
C. piaskowarki
D. torkretnicy
Organizacja i kontrola robót …
W dokumentacji obiektu budowlanego są zapisywane
A. dane o bieżącej liczbie mieszkańców
B. dane o stanie prawnym nieruchomości
C. rezultaty audytu energetycznego
D. rezultaty kontroli stanu technicznego
Organizacja i kontrola robót …
Po zainstalowaniu ościeżnicy okiennej przestrzeń pomiędzy ramą ościeżnicy a ścianą powinna być wypełniona
A. masą silikonową
B. zaprawą polimerową
C. wełną drzewną
D. pianką poliuretanową
Organizacja i kontrola robót …
Zgodnie z normą czasu pracy, ręczne usunięcie warstwy ziemi urodzajnej (humusu) wymaga 21,90 r-g/100 m². Jak wiele 8-godzinnych dni roboczych powinno być zaplanowanych w harmonogramie prac na odspojenie humusu z działki o powierzchni 300 m², jeśli prace będą prowadzone przez 3 robotników?
A. 9 dni roboczych
B. 2 dni robocze
C. 3 dni robocze
D. 8 dni roboczych