Filtrowanie pytań

Wybierz zawód, aby zobaczyć dostępne kwalifikacje

BUD.18 Pytanie 484
Wykonywanie pomiarów sytuacyj…

Aby ułatwić lokalizację zmierzonych szczegółów danego obszaru na odpowiednim szkicu terenowym, tworzy się szkic

A. przeglądowy
B. tachimetryczny
C. podstawowy
D. dokumentacyjny
BUD.18 Pytanie 487
Wykonywanie pomiarów sytuacyj…

Jakim znakiem geodezyjnym powinno się zaznaczyć punkt sytuacyjnej osnowy pomiarowej na twardej nawierzchni drogi?

A. Palik drewniany
B. Bolec metalowy
C. Słupek betonowy
D. Słupek marmurowy
Wykonywanie pomiarów sytuacyj…

Mapy związane z regulacją stanu prawnego nieruchomości to opracowania kartograficzne określane mianem

A. do celów prawnych
B. do celów projektowych
C. katastralnych
D. uzupełniających
Wykonywanie prac geodezyjnych…

W przypadku, gdy wywłaszczeniu podlega nieruchomość o nieuregulowanej sytuacji prawnej, starosta zobowiązany jest do wydania decyzji o nabyciu prawa własności nieruchomości przez Skarb Państwa w ciągu

A. 2 lat
B. 2 kwartałów
C. 2 tygodni
D. 2 miesięcy
BUD.18 Pytanie 490
Wykonywanie pomiarów sytuacyj…

Kiedy oznaczenia geodezyjne uległy zniszczeniu, rekonstruowanie punktów szczegółowej osnowy poziomej należy przeprowadzić na podstawie zarejestrowanych w opisie topograficznym zmierzonych odległości do

A. sąsiednich funkcjonujących punktów osnowy
B. najbliższych elementów terenu
C. punktów określanych jako poboczniki
D. elementów terenowych z I kategorii dokładnościowej
Wykonywanie prac geodezyjnych…

Na rysunku przedstawiono jeden ze sposobów obliczenia objętości mas ziemnych. Którą z metod niwelacji należy wybrać do pomiaru wysokości pikiet?

Ilustracja do pytania 12
A. Profilów poprzecznych.
B. Siatkową.
C. Reperów.
D. Punktów rozproszonych.
Wykonywanie pomiarów sytuacyj…

Jakiej z poniższych czynności nie przeprowadza się podczas wywiadu terenowego?

A. Rozpoznania w terenie punktów osnowy geodezyjnej
B. Uzyskania informacji o terenie, który ma być poddany pomiarom
C. Stabilizacji znaków punktów osnowy geodezyjnej
D. Zestawienia treści materiałów PZG i K ze stanem rzeczywistym
BUD.19 Pytanie 499
Wykonywanie prac geodezyjnych…

Wartość 1:1,5 na przedstawionym schemacie nasypu oznacza

Ilustracja do pytania 19
A. szerokość korony nasypu.
B. skalę profilu podłużnego.
C. nachylenie skłonu skarpy.
D. skalę przekroju poprzecznego.
Wykonywanie prac geodezyjnych…

Numer identyfikacyjny działki 335 znajdującej się w obrębie pierwszym Gminy Miejskiej Aleksandrów Kujawski w województwie kujawsko-pomorskim to 040101_1.0001.335. Podaj identyfikator działki 925 znajdującej się w tym samym mieście, ale w obrębie trzecim?

A. 040103_1.0301.925
B. 040301_1.3001.925
C. 040101_3.0031.925
D. 040101_1.0003.925
BUD.18 Pytanie 501
Wykonywanie pomiarów sytuacyj…

Na fragmencie mapy cyfrą 1 oznaczono

Ilustracja do pytania 21
A. zakrzewienie.
B. drzewo liściaste.
C. zadrzewienie.
D. drzewo iglaste.
BUD.18 Pytanie 503
Wykonywanie pomiarów sytuacyj…

Podczas jakiej procedury geodezyjnej stosuje się niwelację geometryczną?

A. Podczas tworzenia map tematycznych związanych z ukształtowaniem terenu.
B. Podczas wyznaczania kierunków magnetycznych w terenie.
C. Podczas pomiaru odległości w terenie za pomocą metod geodezyjnych.
D. Podczas pomiaru różnic wysokości między punktami.
Wykonywanie prac geodezyjnych…

Pomiar elementów uzbrojenia podziemnego, które zostały zasypane i zlokalizowane przy użyciu urządzeń elektronicznych, powinien być przeprowadzony z precyzją odpowiadającą szczegółom sytuacyjnym w grupie dokładnościowej

A. IV
B. III
C. I
D. II
BUD.18 Pytanie 508
Wykonywanie pomiarów sytuacyj…

Który z dokumentów jest konieczny do zlokalizowania w terenie punktu osnowy geodezyjnej?

A. Dziennik pomiaru kątów osnowy
B. Dziennik pomiaru długości boków osnowy
C. Opis topograficzny punktu
D. Szkic polowy osnowy
Wykonywanie prac geodezyjnych…

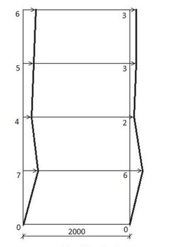
Która metoda pomiaru przemieszczeń poziomych będzie odpowiednia do pomiaru przemieszczeń obiektu przedstawionego na fotografii?

Ilustracja do pytania 29
A. Bezpośredniego rzutowania.
B. Obserwacji kierunków obwodowych.
C. Stałej prostej.
D. Trygonometryczna.
BUD.18 Pytanie 515
Wykonywanie pomiarów sytuacyj…

Lokalizacja charakterystycznych punktów w terenie w procesie niwelacji punktów rozprzestrzenionych ustalana jest za pomocą metody

A. biegunowej
B. ortogonalnej
C. tachimetrycznej
D. przedłużeń
BUD.18 Pytanie 516
Wykonywanie pomiarów sytuacyj…

Geodezyjnym znakiem, który znajduje się pod ziemią, nie jest

A. cegła odpowiednio wypalona
B. słup wykonany z granitu lub betonu
C. rura kanalizacyjna wypełniona betonem
D. rurka drenażowa
Wykonywanie pomiarów sytuacyj…

Jakie prace geodezyjne zawsze wymagają przeprowadzenia wywiadu terenowego oraz przygotowania mapy porównawczej z rzeczywistością?

A. Pomiar objętości mas ziemnych
B. Pomiar kontrolny wychylenia komina
C. Aktualizację bazy danych obiektów topograficznych i mapy zasadniczej
D. Obsługę inwestycji budowlanej
Wykonywanie prac geodezyjnych…

Jakie pismo jest wydawane dla nieruchomości przez Wydział Ksiąg Wieczystych Sądu Rejonowego?

A. Protokół z analizy księgi wieczystej
B. Zaświadczenie z analizy księgi wieczystej
C. Wypis z księgi wieczystej
D. Odpis z księgi wieczystej
Wykonywanie prac geodezyjnych…

Jaką wartość ma długość głównej stycznej łuku kołowego t, jeśli kąt zwrotu stycznych α wynosi 100,0000g, a promień łuku R to 180,00 m?

A. t = 45,00 m
B. t = 90,00 m
C. t = 180,00 m
D. t = 360,00 m