Filtrowanie pytań
Wykonywanie robót montażowych…
A. miniową
B. wapienną
C. ftalową
D. poliwinylową
Organizacja, kontrola i sporz…
W celu przygotowania kosztorysu ofertowego należy korzystać z norm dotyczących nakładów rzeczowych robocizny, materiałów oraz sprzętu
A. ustalonych wyłącznie na podstawie kalkulacji indywidualnej wykonawcy
B. przyjętych wyłącznie zgodnie z obowiązującymi katalogami
C. zawartych w katalogach lub ustalanych na podstawie kalkulacji indywidualnej
D. przyjętych jedynie z opublikowanych informatorów cenowo-kosztowych
Wykonywanie robót montażowych…
Krawędzie cięte płyt gipsowo-kartonowych, które będą używane jako podkład podłogowy, powinny być przed ułożeniem
A. sfazowane pod kątem około 45°
B. zaokrąglone z jednej strony
C. obłożone siatką lub papierem zbrojącym
D. pozostawione bez dodatkowej obróbki
BUD.11 Pytanie 2484
Wykonywanie robót montażowych…
Jaką farbę należy zastosować do malowania wilgotnych ścian, aby w tym pomieszczeniu zapobiec rozwojowi mikroorganizmów?
A. Ftalową
B. Wapiennej
C. Olejnej
D. Klejową
Organizacja, kontrola i sporz…
Z fragmentu rysunku inwentaryzacyjnego wynika, że szerokość otworu okiennego wynosi

A. 110 cm
B. 120 cm
C. 64 cm
D. 230 cm
Wykonywanie robót montażowych…
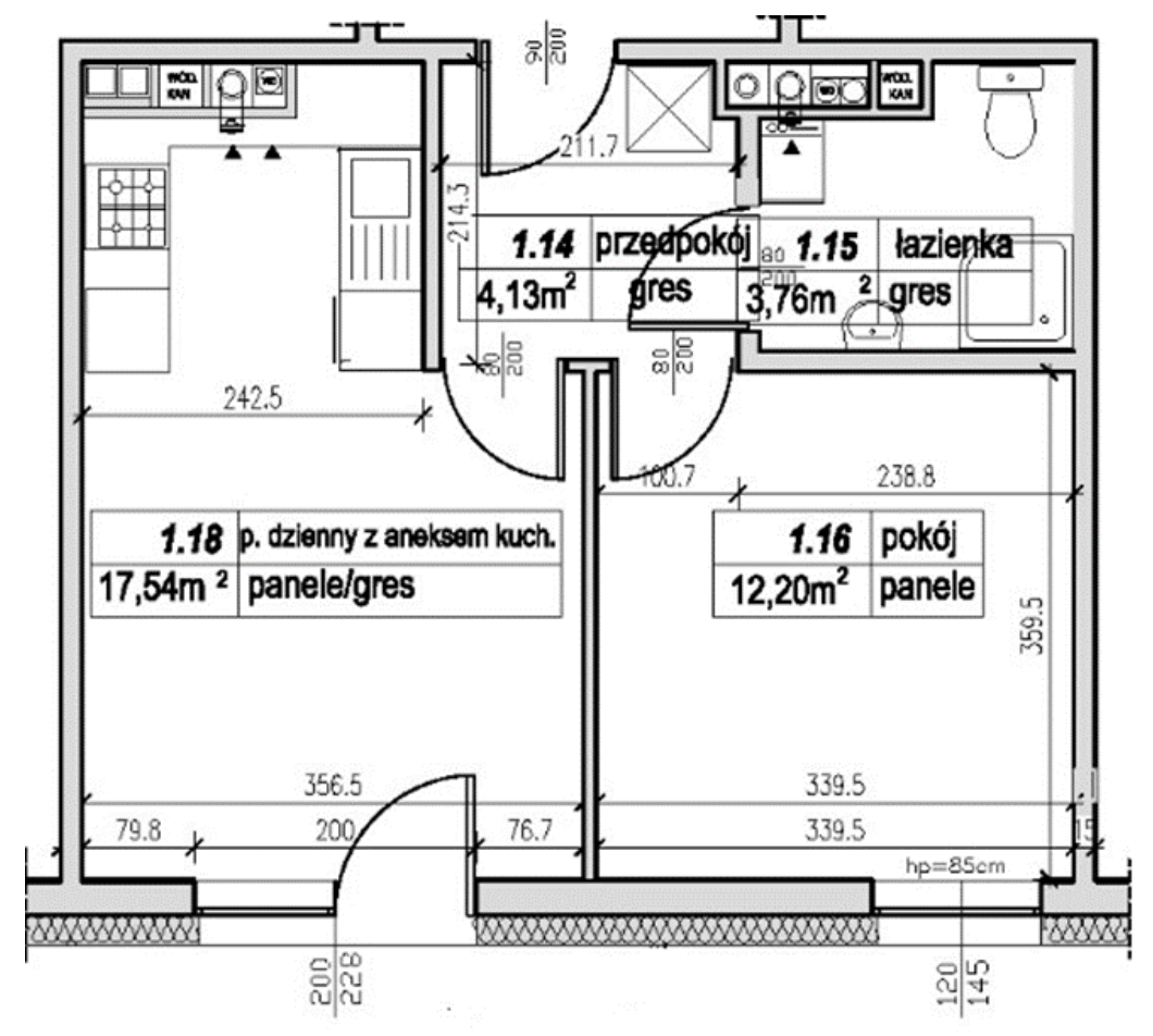
Łączna powierzchnia przedstawionych na rzucie sufitów kuchni i pokoju wynosi

A. 18,0 m2
B. 6,0 m2
C. 24,0 m2
D. 42,0 m2
Wykonywanie robót montażowych…
Na zdjęciu przedstawiono

A. pojemnik do mieszania kleju do tapet.
B. urządzenie do przycinania brytów.
C. przyrząd do nanoszenia kleju.
D. pojemnik do namaczania tapet.
Organizacja, kontrola i sporz…
Cement portlandzki biały używa się do prac
A. murowych
B. fundamentowych oraz tynkarskich
C. hydrotechnicznych
D. elewacyjnych i dekoracyjnych
Organizacja, kontrola i sporz…
Wzór druku przedstawiony na ilustracji służy do sporządzania
| Lp. | Podstawa wyceny | Opis, jednostka miary i ilości | Cena jednostkowa zł | Wartość w zł | ||
|---|---|---|---|---|---|---|
| Robocizna R | Materiały M | Praca sprzętu S | ||||
| 1 | 2 | 3 | 4 | 5 | 6 | 7 |
A. rozliczania czasu pracy.
B. kosztorysu robót.
C. obmiaru robót.
D. rozliczania zużycia materiałów.
Wykonywanie robót montażowych…
Aby uzyskać równą powierzchnię tynku, należy wykonać
A. szpachlowanie
B. gruntowanie
C. fluatowanie
D. impregnowanie
Organizacja, kontrola i sporz…
Korzystając z zamieszczonej tabeli, oblicz wartość robocizny wraz z narzutami (bez podatku VAT) związaną z wykonaniem ław fundamentowych betonowych, jeżeli stawka robocizny wynosi 10,00 zł/r-g, koszty pośrednie – 70% (R), a zysk – 10% (R + Kp (R)).
| Lp. | Roboty budowlane | Nakłady dla całości robót [r-g] |
|---|---|---|
| 1. | Wykonanie deskowania | 25 |
| 2. | Ułożenie podkładu betonowego 10 cm | 12 |
| 3. | Przygotowanie i montaż zbrojenia | 8 |
| 4. | Ułożenie i zagęszczenie mieszanki betonowej C 16/20 | 5 |
A. 350,00 zł
B. 500,00 zł
C. 850,00 zł
D. 935,00 zł
Wykonywanie robót montażowych…
Wodny roztwór kwasu fluorokrzemowego jest używany do
A. zobojętnienia podłoża
B. zmatowienia powłok malarskich
C. rozcieńczenia substancji malarskich
D. wygładzania powierzchni
Wykonywanie robót montażowych…
Jeśli norma zużycia paneli HDF wynosi 1,1 m2/m2, to ile paneli jest potrzebnych do pokrycia podłogi w pomieszczeniu o wymiarach 5 x 4 m?
A. 11 m2
B. 10 m2
C. 20 m2
D. 22 m2
Organizacja, kontrola i sporz…
W jaki sposób powinny być przechowywane prefabrykowane płyty ścienne z żelbetu?
A. Poziomo - na paletach, osłonięte brezentem lub folią
B. Pionowo - na wyznaczonym terenie, opierając o murek oporowy
C. Poziomo - na podkładkach oraz przekładkach
D. Pionowo - w stalowych przegrodach kozłów oporowych
Wykonywanie robót montażowych…
Jakie będzie wynagrodzenie pracownika za położenie okładziny korkowej na ścianie o wymiarach 5,0 × 3,0 m, przy stawce 20,00 zł/m2?
A. 300,00 zł
B. 100,00 zł
C. 60,00 zł
D. 15,00 zł
Wykonywanie robót montażowych…
W łazience należy ochronić podłoże wykonane z płyt gipsowo-kartonowych wokół urządzeń sanitarnych przed działaniem wody?
A. środkiem gruntującym
B. folią w płynie
C. folią przeciwwilgociową
D. farbą wodną
Organizacja, kontrola i sporz…
Objętość nasypu przedstawionego na rysunku, dla następujących danych: a = 7 m, z = 2m, h = 2 m, l=200 m, wynosi

A. 3600 m3
B. 3600 m2
C. 1800 m3
D. 1800 m2
Wykonywanie robót montażowych…
Na podstawie fragmentu specyfikacji technicznej określ, kiedy najwcześniej można przykleić tapetę po zagruntowaniu ściany w dobrze ogrzewanym pomieszczeniu.
| SZCZEGÓŁOWA SPECYFIKACJA TECHNICZNA: TAPETOWANIE-POWŁOKI MALARSKIE | |
| 1. WSTĘP | |
| 1.1 Przedmiot SST | |
| W niniejszej szczegółowej specyfikacji technicznej omówiono ogólne wymagania dotyczące wykonania i odbioru powłok malarskich oraz tapetowania. | |
| [...] | |
| 4.Wykonanie robót | |
| − | Temperatura w pomieszczeniu, w którym będą wykonywane roboty tapeciarskie, powinna wynosić co najmniej +10°C; |
| − | Do przyklejania tapety należy przystąpić po wyschnięciu warstwy gruntującej, w okresie letnim lub w dobrze ogrzewanych pomieszczeniach dopuszcza się przyklejenie po czterech godzinach od zagruntowania; |
| − | Przyklejenie tapet na ścianach należy rozpocząć od wyklejenia ościeży i wnęk; |
| − | Tapety muszą być wyklejone na styk; |
| − | Przyklejanie arkuszy tapety należy wykonywać od górnej krawędzi ściany ku dołowi; |
| − | Przy podłodze tapeta powinna być przyklejona w taki sposób, aby listwa podłogowa zakrywała jej górną część co najmniej na wysokość 1,5 cm; |
| − | |
A. Po 4 godzinach.
B. Po wyklejeniu wnęk tapetą.
C. Po wyklejeniu ościeżnic tapetą.
D. Po 10 godzinach.
Wykonywanie robót montażowych…
Na ścianie o wymiarach 4,00 x 2,50 m przewidziano przyklejenie dwóch pokazanych na rysunku naklejek oraz wytapetowanie jej pozostałej powierzchni. Ile kosztują materiały do wykończenia tej ściany, jeżeli cena jednej naklejki wynosi 30,00 zł, a 1 m2 tapety - 10,00 zł?

A. 93,00 zł
B. 160,00 zł
C. 153,00 zł
D. 100,00 zł
Wykonywanie robót montażowych…
Wykładziny dywanowe klasyfikują się do kategorii posadzek
A. z tworzyw sztucznych
B. mineralnych
C. drewnianych klejonych warstwowo
D. z materiałów drewnopochodnych
Wykonywanie robót montażowych…
Zgodnie z instrukcją montażu paneli boazeryjnych listwy szkieletu pod pionowo układane panele ścienne powinny być zamocowane maksymalnie co
| Instrukcja montażu paneli boazeryjnych (fragment) | |
| • | Szkielet, wykonany z suchych listew drewnianych, stanowi konstrukcję, do której mocowane będą panele boazeryjne. |
| • | Listwy należy przymocować do ściany przy użyciu kołków rozporowych w kierunku prostopadłym do przebiegu paneli boazeryjnych. |
| • | Odstępy między listwami powinny wynosić maksymalnie 50 cm. |
| • | W przypadku mocowania paneli na suficie odstępy między listwami powinny wynosić maksymalnie 30 cm. |
A. 50 cm
B. 80 cm
C. 30 cm
D. 20 cm
Organizacja, kontrola i sporz…
Jakie urządzenia wykorzystuje się do ciągłego transportu dużych ilości mieszanki betonowej z węzła betoniarskiego na placu budowy do miejsca, w którym jest ona układana?
A. mieszalniki samochodowe
B. wozy samowyładowcze
C. wózki dwukołowe, nazywane też japonkami
D. pompy i rurociągi
BUD.11 Pytanie 2503
Wykonywanie robót montażowych…
W celu ułożenia podłogi zakupiono 10 paczek paneli. Każda paczka ma powierzchnię 0,72 m2. Zgodnie z pomiarem wykorzystano 6,5 m2 paneli. Ile paneli pozostało?
A. 0,70 m2
B. 0,20 m2
C. 3,50 m2
D. 5,78 m2
BUD.11 Pytanie 2504
Wykonywanie robót montażowych…
Jaką ilość kleju do tapet trzeba przygotować do pokrycia ściany o wymiarach 6×3 m, jeśli przeciętne zużycie kleju wynosi 0,2 kg/m2?
A. 45,00 kg
B. 90,00 kg
C. 7,20 kg
D. 3,60 kg
Wykonywanie robót montażowych…
Elementy przedstawionej na rysunku okładziny z dekoracyjnych paneli 3D należy mocować na

A. klej bezpośrednio do podłoża.
B. wkręty do rusztu.
C. wkręty bezpośrednio do podłoża.
D. klej do rusztu.
Organizacja, kontrola i sporz…
Jaki wynik uzyskuje się przy pomiarze konsystencji mieszanki betonowej za pomocą urządzenia Ve-Be?
A. 1,45
B. 10 cm
C. 15 s
D. 60 cm
Organizacja, kontrola i sporz…
Rozbiórkę obiektu wykonanego w tradycyjny sposób należy zacząć od demontażu
A. urządzeń i instalacji elektrycznych
B. skrzydeł okien i drzwi
C. rynien i rur odwadniających
D. ościeżnic oraz ścianek działowych
Wykonywanie robót montażowych…
Panele boazeryjne montuje się bezpośrednio na
A. drewnianym szkieletcie na klej mocznikowy
B. drewnianym szkieletcie na uchwyty do paneli
C. murze ceglanym na kołki rozporowe
D. murze ceglanym na śruby
Wykonywanie robót montażowych…
Który sposób łączenia płyt podłogowych suchego jastrychu przedstawiono na rysunku?

A. Na wpust i wypust.
B. Na zakładkę.
C. Czołowy.
D. Dwurzędowy.
Wykonywanie robót montażowych…
Jakim narzędziem powinniśmy profilować wyspoinowaną fugę?
A. packi filcowej
B. szpachelki
C. packi gąbkowej
D. nakładarki
BUD.11 Pytanie 2511
Wykonywanie robót montażowych…
Maksymalne dopuszczalne odchylenie ścianki działowej od pionu wynosi 2 mm/m oraz nie przekracza 10 mm na całej wysokości pomieszczenia. Jakie jest dopuszczalne maksymalne odchylenie od pionu ścianki w pomieszczeniu o wysokości 5,5 m?
A. 2,0 mm
B. 11,5 mm
C. 10,0 mm
D. 5,5 mm
Wykonywanie robót montażowych…
Przed nałożeniem okładziny z płytek ceramicznych na prefabrykowane ściany żelbetowe, należy najpierw
A. odtłuścić.
B. zwilżyć.
C. zagruntować.
D. wygładzić.
Wykonywanie robót montażowych…
Przedstawione na rysunku panele podłogowe HDF zalicza się do grupy wyrobów

A. drewnianych.
B. ceramicznych.
C. kamiennych.
D. drewnopochodnych.
Wykonywanie robót montażowych…
W wyniku pokrywania papieru bazowego cienką folią uzyskuje się tapetę
A. fizelinowa
B. winylowa
C. natryskowa
D. tekstylna
Wykonywanie robót montażowych…
Ocenę stanu powierzchni konstrukcji ze stali przed nałożeniem powłok malarskich o właściwościach przeciwkorozyjnych dokonuje się w czasie nieprzekraczającym
A. 14 dni od zakończenia czyszczenia
B. 1 godziny od zakończenia czyszczenia
C. 12 godzin od zakończenia czyszczenia
D. 1 dnia od zakończenia czyszczenia
Wykonywanie robót montażowych…
Jeśli cena ułożenia jednej płytki ceramicznej o wymiarach 60 × 60 cm wynosi 40,00 zł, to ile będzie kosztować wykonanie posadzki w pomieszczeniu o wymiarach podłogi 3,0 × 3,6 m?
A. 432,00 zł
B. 945,00 zł
C. 1 200,00 zł
D. 1 440,00 zł
BUD.11 Pytanie 2517
Wykonywanie robót montażowych…
Na podstawie zamieszczonych warunków technicznych określ, ile wynosi maksymalna dopuszczalna odchyłka powierzchni posadzki z płytek ceramicznych gat. II od płaszczyzny poziomej w pomieszczeniu o wymiarach posadzki 2×3 m.
| Warunki techniczne wykonania i odbioru robót posadzkarskich (fragment) | ||
|---|---|---|
| Rodzaj posadzki | Dopuszczalna odchyłka powierzchni posadzki od płaszczyzny poziomej | |
| na 1 metr | na całej długości lub szerokości pomieszczenia | |
| Ceramiczna gat. I | 2 mm | max. 3 mm |
| Ceramiczna gat. II | 3 mm | max. 5 mm |
| Klinkierowa | 4 mm | max. 5 mm |
A. 6 mm
B. 2 mm
C. 5 mm
D. 3 mm
Wykonywanie robót montażowych…
Jakie materiały można wykorzystać do wyrównania podłoża pod wykładziny podłogowe z tworzyw sztucznych w rolkach?
A. upłynnioną wylewkę cementową
B. zaprawę klejową w formie płynnej
C. mieszankę cementowo-wapienną
D. zaprawę gipsowo-wapienną
Wykonywanie robót montażowych…
Jakie elementy należy zastosować do przymocowania drewnianego rusztu do ściany z betonu?
A. wkrętów samogwintujących
B. łączników kotwowych
C. wkrętów do drewna
D. łączników rozporowych
Wykonywanie robót montażowych…
Jakiego narzędzia używa się do cięcia płyt gipsowych w linii prostej?
A. Noża
B. Brzeszczotu
C. Wyrzynarki
D. Pilarki tarczowej