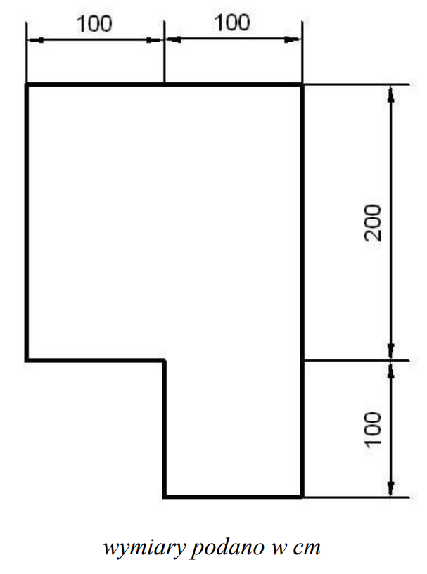
Oblicz przeznaczoną do wykonania izolacji akustycznej powierzchnię boczną kanału klimatyzacyjnego o przekroju jak na rysunku i długości 10 m.


| Specyfikacja techniczna wykonania izolacji antykorozyjnej (fragment) | |||||
|---|---|---|---|---|---|
| Metody i środki | Aplikacja w zakładzie | Aplikacja w terenie | Stopień starzenia cynku | ||
| nowy | częściowo | w pełni | |||
| bez żadnych środków | Δ | ▼ | Δ | ▼ | ▼ |
| środki alkaliczne | Δ | ● | Δ | Δ | Δ |
| środki amoniakalne | Δ | ● | Δ | Δ | Δ |
| woda/ ciśnieniowo | Δ/ Δ | Δ | Δ/ Δ | Δ/ Δ | Δ/ Δ |
| rozpuszczalniki organiczne | Δ | Δ | Δ | Δ | Δ |
| szlifowanie/ szczotkowanie | Δ | Δ | Δ | Δ | Δ |
| obróbka strumieniowo-ścierna (sweep) | Δ | ▼ | Δ | Δ | Δ |
| chromianowanie | Δ | ▼ | Δ | Δ | Δ |
| fosforanowanie | Δ | ▼ | Δ | Δ | Δ |
| Δ – zalecane ● – zalecane z ograniczeniami ▼ – nie zalecane | |||||

| KARTA TECHNICZNA MIKROZAPRAWY USZCZELNIAJĄCEJ | |
|---|---|
| Wskazówki wykonawcze (fragment): | |
| Do ochrony powłoki hydroizolacyjnej z mikrozaprawy uszczelniającej można stosować płyty styropianowe (EPS), styrodurowe (XPS) jak również płyty ochronno-drenujące. Termoizolacja w gruncie musi być wykonana z materiału odpornego na obciążenia mechaniczne, agresywne czynniki występujące w gruncie oraz oddziaływanie wilgoci/wody. W przypadku bezpośredniego użytkowania uszczelnianej powierzchni (chodzenie) należy uwzględnić warstwę ochronną (np. jastrych ochronny na warstwie rozdzielającej z folii lub płytki okładzinowe). W przypadku wykonywania hydroizolacji typu wannowego (odrywanych od podłoża) elementy konstrukcyjne muszą być odporne na wodę (hydroizolacja musi być wówczas wykonana na elemencie konstrukcyjnym). |






| Wyciąg z KNR 2-02 Izolacje cieplne i przeciwdźwiękowe z płyt pilśniowych porowatych | |||||
|---|---|---|---|---|---|
| Nakłady na 100 m² | Tablica 0610 | ||||
| Lp. | Wyszczególnienie | Jednostka miary | Izolacje pionowe | ||
| Rodzaje zawodów i maszyn | oznaczenie literowe | Na lepiku | Na sucho, na ruszcie | ||
| 01 | Dekarze – grupa II | r-g | 22,27 | 23,85 | |
| 02 | Robotnicy – grupa I | r-g | 33,64 | 3,31 | |
| Razem | r-g | 55,91 | 27,16 | ||
| 70 | Wyciąg | m-g | 1,10 | 0,73 | |
| 71 | Środek transportowy | m-g | 1,36 | 0,59 | |








| Karta techniczna antykorozyjnej farby do metalu o ekstremalnej odporności |
|---|
PRZYGOTOWANIE – Powierzchnia musi być czysta, sucha i odtłuszczona. – Powierzchnie nowe: powierzchnię odtłuścić. Powierzchnie zardzewiałe: kruchą rdzę usunąć metalową szczotką. – Powierzchnie pomalowane, farba uszkodzona: uszkodzoną powierzchnię należy usunąć specjalnym środkiem do usuwania starej powłoki, a następnie odtłuścić. – Powierzchnie malowane, nienaruszona powłoka farby: powierzchnię odkurzyć i opłukać w celu oczyszczenia z ewentualnych resztek soli. Pomalować farbą do metalu (farba podkładowa nie jest konieczna). NANOSZENIE Przed użyciem farbę dobrze wymieszać. Powierzchnię przeszlifować papierem ściernym w celu uzyskania lepszej przyczepności. Nałożyć dwie nierozcienczone warstwy za pomocą pędzla w temperaturze 10°C - 20°C. |
| Straty ciepła przez 1 m² okna w sezonie grzewczym | |||
|---|---|---|---|
| Rodzaj okna | Współczynnik U W/m²K | Straty w sezonie grzewczym [kWh/m²] | |
| bez rolet | z roletami | ||
| podwójna szyba (rok produkcji 1980) | 2,6 | 242 | 164 |
| podwójna szyba z jedną warstwą niskoemisyjną (rok produkcji 1990) | 2,0 | 187 | 136 |
| podwójna szyba z jedną warstwą niskoemisyjną i argonem (rok produkcji 2005) | 1,5 | 140 | 110 |
| podwójna szyba z jedną warstwą niskoemisyjną i argonem (rok produkcji 2008) | 1,0 | 94 | 79 |
| potrójna szyba z dwiema powłokami niskoemisyjnymi i argonem (rok produkcji 2008) | 0,5 | 47 | 43 |














| Zestawienie powierzchni pomieszczeń w hali przemysłowej | |
|---|---|
| Pomieszczenie produkcyjne I | 64,20 m² |
| Korytarz | 24,50 m² |
| Pomieszczenie produkcyjne II | 48,00 m² |
| Pomieszczenie produkcyjne III | 36,60 m² |
| Pomieszczenie biurowe | 20,00 m² |
| Specyfikacja techniczna wykonania i odbioru robót budowlanych | |
|---|---|
| fragment | |
| Izolacja termiczna | |
8. ODBIÓR ROBÓT 8.2. Odbiór robót zanikających i ulegających zakryciu. Przy robotach związanych z wykonywaniem izolacji termicznych elementem ulegającym zakryciu są podłoża. Odbiór podłoży musi być dokonany przed rozpoczęciem robót izolacyjnych. 8.3. Odbiór częściowy Odbiór częściowy polega na kontroli: - jakości materiałów, - podkładu pod izolacje, - każdej warstwy izolacyjnej (w izolacjach wielowarstwowych), - uszczelnienia i obrobienia szczelin dylatacyjnych, - poprawności obrobienia miejsc mogących tworzyć mostki termiczne. Celem odbioru częściowego jest wczesne wykrycie ewentualnych usterek w realizowanych robotach i ich usunięcie przed odbiorem końcowym. 8.4. Odbiór ostateczny (końcowy) Odbiór końcowy stanowi ostateczną ocenę rzeczywistego wykonania robót w odniesieniu do ich zakresu (ilości), jakości i zgodności z dokumentacją projektową. |
