Filtrowanie pytań
Wytwarzanie prostych wyrobów …
A. przetrzeć nawilżoną ściereczką.
B. zanurzyć w wodzie.
C. zanurzyć w rozpuszczalniku.
D. przetrzeć naoliwioną ściereczką.
Wytwarzanie prostych wyrobów …
Który smar opisany w tabeli jest przeznaczony do przekładni zębatych o zębach skośnych?

A. T. Li 802 EP
B. T. m. TF
C. T.H. L 250 ASL
D. T. H . L 252
Wytwarzanie prostych wyrobów …
Na podstawie danych w tabeli określ czas parzenia drewna dębowego o grubości 18 mm.

A. 30÷40 min
B. 50÷60 min
C. 25÷30 min
D. 70÷90 min
Wytwarzanie prostych wyrobów …
Na ilustracji przedstawiono drzwi o konstrukcji

A. płytowej.
B. płytowej.
C. listwowej.
D. klepkowej.
Wytwarzanie prostych wyrobów …
Wykonując naprawę elementu intarsjowanego, należy użyć
A. wyłącznie gatunków egzotycznych.
B. drewna gatunków iglastych.
C. gatunków oklein zastosowanych w tym elemencie.
D. dowolnych gatunków oklein.
Wytwarzanie prostych wyrobów …
Podczas frezowania listew o niewielkim przekroju na frezarce dolnowrzecionowej, należy zastosować
A. sprężyny dociskowe.
B. popychacze materiału.
C. dodatkowe osłony.
D. długie prowadnice.
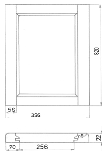
Wytwarzanie prostych wyrobów …
Długość ramiaka poziomego drzwiczek wynosi

A. 256 mm
B. 340 mm
C. 326 mm
D. 284 mm
Wytwarzanie prostych wyrobów …
Wskaż prawidłową kolejność prac przy montażu serii szaf 2-drzwiowych z półką, drążkiem na wieszaki i szufladą. Elementy konstrukcyjne połączone na kołki, ściana tylna mocowana wkrętami we wręgu elementów korpusu.
A. Montaż szuflady, okuwanie, klejenie korpusu, zawieszanie drzwi, pasowanie części ruchomych.
B. Montaż szuflady, klejenie korpusu, okuwanie, pasowanie części ruchomych, zawieszanie drzwi.
C. Okuwanie, zawieszanie drzwi, montaż szuflady, klejenie korpusu, pasowanie części ruchomych.
D. Montaż szuflady, klejenie korpusu, pasowanie części ruchomych, zawieszanie drzwi, okuwanie.
Wytwarzanie prostych wyrobów …
Do klejenia złączy konstrukcyjnych mebli szkieletowych należy użyć kleju
A. neoprenowego.
B. poliocotanowinylowego.
C. poliuretanowego.
D. topliwego.
Wytwarzanie prostych wyrobów …
Które czynności należy zastosować w celu naprawy wady powstałej po wypadającym sęku?
A. Rozpiłowanie elementu w poprzek włókien, usunięcie sęka, sklejenie, wykończenie powierzchni.
B. Nałożenie akrylowej szpachli, wyszlifowanie, wykończenie powierzchni.
C. Nawiercenie sęka, wklejenie wstawki, wyszlifowanie, wykończenie powierzchni.
D. Zalanie ubytku klejem, wyszlifowanie, wykończenie powierzchni.
Wytwarzanie prostych wyrobów …
Jak nazywa się wada elementu meblowego płytowego o powierzchni płaskiej, którą można usunąć w pokazany na rysunku sposób?

A. Plamy na powierzchni elementu.
B. Pęknięcia konstrukcyjne.
C. Wypaczenie wypukłe.
D. Wypaczenie wklęsłe.
Wytwarzanie prostych wyrobów …
Próbka drewna bukowego oznaczona jest literą
A. Próbka A

B. Próbka D

C. Próbka B

D. Próbka C

Wytwarzanie prostych wyrobów …
Szlifierkę oscylacyjną przedstawia zdjęcie
A. Zdjęcie 3

B. Zdjęcie 4

C. Zdjęcie 1

D. Zdjęcie 2

Wytwarzanie prostych wyrobów …
Na czas transportu szafy drzwi szklane należy
A. zamontować w korpusie i zabezpieczyć.
B. zdemontować i ułożyć wewnątrz korpusu.
C. zdemontować i starannie zabezpieczyć.
D. zamontować w korpusie i unieruchomić.
Wytwarzanie prostych wyrobów …
Który z przedstawionych łączników należy zastosować do wykonania rozłącznych złączy konstrukcyjnych w meblu skrzyniowym?
A. Łącznik 4.

B. Łącznik 1.

C. Łącznik 2.

D. Łącznik 3.

Wytwarzanie prostych wyrobów …
Głębokość wykonanego gniazda Ø8 należy zmierzyć
A. suwmiarką.
B. miarą drewnianą.
C. miarą zwijaną.
D. szczelinomierzem.
Wytwarzanie prostych wyrobów …
Ocenę zakresu naprawy i renowacji mebla należy oszacować po
A. określeniu ilości ubytków.
B. oczyszczeniu elementów.
C. poskładaniu części mebla u klienta przed transportem do warsztatu.
D. demontażu okuć i elementów w warsztacie.
Wytwarzanie prostych wyrobów …
Zastosowanie poprzecznych listew w pokazanym na rysunku elemencie ma na celu

A. ustabilizowanie grubości płyty.
B. zapobieganie pęcznienia w poprzek włókien.
C. zapobieganie pęcznienia wzdłuż włókien.
D. ustabilizowanie kształtu płyty.
Wytwarzanie prostych wyrobów …
Zgodnie z Polską Normą sortyment tarcicy o grubości 16÷50 mm to
A. listwa.
B. łata.
C. deseczka.
D. deska.
Wytwarzanie prostych wyrobów …
Ile rozcieńczalnika należy dodać do 10 litrów lakieru przygotowywanego do lakierowania podłogi, jeżeli w recepturze lakieru przewidziano rozcieńczanie go w proporcji 1:20?
A. 0,6 litra.
B. 0,8 litra.
C. 0,5 litra.
D. 0,7 litra.
Wytwarzanie prostych wyrobów …
Do wykonania wstawek wklejanych w naprawiane miejsca na powierzchni zabytkowego mebla należy dobrać drewno, które
A. ma barwę ciemniejszą od barwy naprawianego drewna.
B. jest zbliżone wiekiem do wieku drewna w naprawianym meblu.
C. odróżnia się rysunkiem od drewna naprawianego.
D. ma wilgotność większą od wilgotności drewna w naprawianym meblu.
Wytwarzanie prostych wyrobów …
Wykonując naprawę intarsji z okleiny orzechowej należy użyć okleiny
A. wyłącznie z iglastego drewna.
B. z tego samego gatunku drewna.
C. wyłącznie z egzotycznego drewna.
D. z dowolnego gatunku drewna liściastego.
Wytwarzanie prostych wyrobów …
Na czym polega przygotowanie kleju glutynowego do klejenia złączy meblowych?
A. Dodaniu do masy klejowej utwardzacza.
B. Wymieszaniu masy klejowej z żywicą mocznikową.
C. Dodaniu do masy klejowej rozcieńczalnika organicznego.
D. Podgrzaniu masy klejowej.
Wytwarzanie prostych wyrobów …
Do szlifowania elementów krzywych, zwłaszcza od strony ich wklęsłości należy zastosować szlifierkę
A. walcową.
B. bębnową.
C. tarczową.
D. wałkową.
Wytwarzanie prostych wyrobów …
Ile litrów kleju należy przygotować do klejenia na zimno elementów o powierzchni klejonej 50 m², jeżeli zużycie kleju wynosi 150 ml/m²?
A. 7,5 litra.
B. 9,5 litra.
C. 8,5 litra.
D. 5,5 litra.
Wytwarzanie prostych wyrobów …
Prawidłowa kolejność operacji technologicznych podczas okleinowania płyty surowej zapisana jest w kolumnie
A. 1. wycinanie elementów 2. okleinowanie szerokich powierzchni 3. formatowanie 4. okleinowanie wąskich powierzchni
B. 1. wycinanie elementów 2. formatowanie 3. okleinowanie wąskich powierzchni 4. okleinowanie szerokich powierzchni
C. 1. okleinowanie wąskich powierzchni 2. wycinanie elementów 3. okleinowanie szerokich powierzchni 4. formatowanie
D. 1. okleinowanie szerokich powierzchni 2. wycinanie elementów 3. okleinowanie wąskich powierzchni 4. formatowanie
Wytwarzanie prostych wyrobów …
Ścianę tylną szafy, której korpus jest montowany w urządzeniu montażowym, należy zamontować
A. podczas zaciśnięcia korpusu w urządzeniu montażowym.
B. przed ułożeniem korpusu w urządzeniu montażowym.
C. po wyjęciu korpusu z urządzenia montażowego.
D. po zwolnieniu nacisku urządzenia montażowego.
Wytwarzanie prostych wyrobów …
Która kolejność operacji technologicznych obróbki maszynowej podczas przygotowania elementów do klejenia jest prawidłowa?
A. Manipulacja, rozrzynanie, pasowanie, bazowanie.
B. Bazowanie, pasowanie, rozrzynanie, manipulacja.
C. Manipulacja, rozrzynanie, bazowanie, pasowanie.
D. Pasowanie, manipulacja, rozrzynanie, bazowanie.
Wytwarzanie prostych wyrobów …
Przedstawiona na zdjęciu skrzynia jest wykonana w stylu

A. biedermeier.
B. gotyckim.
C. barokowym.
D. klasycystycznym.
Wytwarzanie prostych wyrobów …
Na rysunku przedstawiono sposób naprawy elementu graniakowego za pomocą

A. wstawki.
B. kołka.
C. nakładki.
D. obejmy.
Wytwarzanie prostych wyrobów …
Na podstawie danych zamieszczonych w tabeli dobierz technikę nanoszenia lakieru na powierzchnię płaską elementu płytowego o wymiarach 150×60 cm, która zapewni najmniejsze straty materiałowe.

A. Natrysk hydrodynamiczny.
B. Nanoszenie przez polewanie.
C. Natrysk pneumatyczny.
D. Nanoszenie pędzlem.
Wytwarzanie prostych wyrobów …
Wskaż właściwą kolejność obróbki drewna przeznaczonego na deski podłogowe.
A. Piłowanie, struganie, frezowanie, szlifowanie.
B. Struganie, szlifowanie, piłowanie, frezowanie.
C. Piłowanie, struganie, szlifowanie, frezowanie.
D. Struganie, piłowanie, szlifowanie frezowanie.
DRM.03 Pytanie 793
Wytwarzanie prostych wyrobów …
Na którym rysunku przedstawiono ułożenie desek przygotowanych do klejenia płyty stołu, które najskuteczniej zapobiegnie jego paczeniu?
A. Rysunek 4

B. Rysunek 1

C. Rysunek 2

D. Rysunek 3

Wytwarzanie prostych wyrobów …
Na rysunku przedstawiono narzędzie przeznaczone do obróbki drewna metodą

A. szlifowania.
B. piłowania.
C. frezowania.
D. strugania.
Wytwarzanie prostych wyrobów …
Lakier caponowy stosuje się na powierzchni drewna w celu
A. zabezpieczenia przed ciemnieniem.
B. rozjaśnienia usłojenia.
C. uzyskania wysokiego połysku.
D. podkreślenia usłojenia.
Wytwarzanie prostych wyrobów …
Pokazany na rysunku przyrząd służy do

A. ustawiania kąta frezowania.
B. trasowania krzywoliniowego.
C. trasowania linii pod kątem.
D. ustawienia kąta piłowania.
Wytwarzanie prostych wyrobów …
Aby sprawdzić czy elementy korpusu szafki są względem siebie prostopadłe, należy porównać długości
A. wieńców szafki.
B. przekątnych ścian bocznych szafki.
C. przekątnych korpusu szafki.
D. ścian bocznych szafki.
Wytwarzanie prostych wyrobów …
W zabytkowej komodzie rokokowej zniszczeniu uległy dwa uchwyty z brązu. Na czym powinna polegać renowacja tej komody?
A. Zastąpieniu brakujących uchwytów podobnymi zakupionymi w sklepie.
B. Zamocowaniu specjalnie wykonanej kopii tych uchwytów.
C. Pozostawieniu szuflad bez brakujących uchwytów.
D. Zamocowaniu jednakowych uchwytów do wszystkich szuflad.
DRM.03 Pytanie 799
Wytwarzanie prostych wyrobów …
Na którym rysunku pokazano ułożenie desek przygotowanych do klejenia płyty stołu, które najskuteczniej zapobiegnie jego paczeniu?
A. Rysunek 1

B. Rysunek 2

C. Rysunek 4

D. Rysunek 3

Wytwarzanie prostych wyrobów …
Której piły należy użyć do narzynania drewna na określoną głębokość, np. przy pletwieniu?
A. Narznicy.
B. Płatnicy.
C. Odsadnicy.
D. Czopnicy.