Filtrowanie pytań
Wykonywanie robót związanych …
A. zatrzymania oleju i odprowadzenie go do kanalizacji.
B. zatrzymanie oleju i odprowadzenie go do parownika.
C. prawidłowego powrotu oleju do sprężarki.
D. prawidłowego powrotu oleju do skraplacza.
Wykonywanie robót związanych …
Przedstawiony na rysunku bezprzewodowy rejestrator wyświetla informacje o

A. temperaturze i wilgotności względnej.
B. prędkości i temperaturze.
C. ciśnieniu i wilgotności.
D. temperaturze i wilgotności bezwzględnej.
Wykonywanie robót związanych …
Przedstawione na ilustracji łączenie rurek miedzianych wykonywane jest poprzez

A. zastosowanie złączek gwintowanych.
B. kielichowanie końcówek rurek.
C. lutowanie rurek i złączek.
D. zaciskanie profilowanych łączników.
Wykonywanie robót związanych …
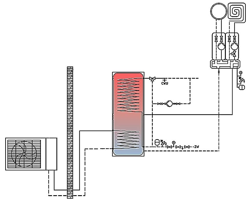
Na schemacie przedstawiono zasadę funkcjonowania

A. centrali klimatyzacyjnej.
B. powietrznej pompa ciepła.
C. zasobnika ciepłej wody.
D. klimatyzatora przypodłogowego.
Wykonywanie robót związanych …
Przyrząd pomiarowy przedstawiony na rysunku to

A. rotametr.
B. areometr.
C. anemometr.
D. termometr.
ELE.03 Pytanie 46
Wykonywanie robót związanych …
Na której ilustracji umieszczono przyrząd stosowany do kontroli spadku ciśnienia na filtrze?
A. Na ilustracji 1.

B. Na ilustracji 4.

C. Na ilustracji 2.

D. Na ilustracji 3.

Wykonywanie robót związanych …
Wskaż właściwą kolejność otwierania i zamykania zaworów w celu opróżnienia zbiornika oleju pod odolejaczem w urządzeniu chłodniczym amoniakalnym przedstawionym na rysunku.

A. Zamknąć zawory 2 i 3, otworzyć zawory 1 i 4
B. Otworzyć zawory 1 i 2, zamknąć zawory 3 i 4
C. Zamknąć zawory 1 i 2, otworzyć zawory 3 i 4
D. Otworzyć zawory 2 i 3, zamknąć zawory 1 i 4
Wykonywanie robót związanych …
Którymi kolorami w instrukcji obsługi stacji odzysku rysowane są elastyczne przewody oznaczone na rysunku cyframi 1, 2, 3?

A. 1 - żółtym, 2 - czerwonym, 3 - niebieskim.
B. 1 - niebieskim, 2 - czerwonym, 3 - żółtym.
C. 1 - czerwonym, 2 - żółtym, 3 - niebieskim.
D. 1 - czarnym, 2 - niebieskim, 3 – czerwonym.
Wykonywanie robót związanych …
Który odcinek na wykresie obiegu czynnika chłodniczego w układzie chłodniczym odpowiada przebiegowi sprężania?

A. 3-4
B. 4-1
C. 1-2
D. 2-3
Eksploatacja i organizacja ro…
Na podstawie zamieszczonej tabeli określ klasę wydajności energetycznej klimatyzatora, jeżeli sezonowy współczynnik efektywności energetycznej w trybie chłodzenia wynosi 3,98, a sezonowy współczynnik efektywności energetycznej w trybie grzania jest równy 4,17?

A. Dla trybu grzania klasa D i dla trybu chłodzenia klasa A+
B. Dla trybu chłodzenia klasa D i dla trybu grzania klasa A
C. Dla trybu chłodzenia klasa C i dla trybu grzania klasa B
D. Dla trybu chłodzenia klasa D i dla trybu grzania klasa A+
Wykonywanie robót związanych …
Na schemacie przedstawiono system z elektronicznym czujnikiem poziomu i z zaworem elektromagnetycznym. Który zawór należy zamontować w miejscu oznaczonym literami ZR?

A. Zawór pływakowy niskiego ciśnienia.
B. Zawór pływakowy wysokiego ciśnienia.
C. Ręczny zawór regulacyjny.
D. Termostatyczny zawór rozprężny.
Eksploatacja i organizacja ro…
Po wymianie uszczelnień szczotkowych obrotowego wymiennika ciepła należy uruchomić wymiennik na 30 minut, aby szczotki się dotarły. Którą wielkość na pracującym wymienniku należy zmierzyć w pierwszej kolejności, aby ocenić proces docierania?
A. Temperaturę powietrza na dolocie do wymiennika.
B. Pobór prądu przez silnik w celu porównania z prądem znamionowym.
C. Napięcie zasilania silnika w celu porównania z napięciem znamionowym.
D. Moment obrotowy rotora wymiennika.
Wykonywanie robót związanych …
Zgodnie z ustawą o substancjach zubożających warstwę ozonową przy demontażu części urządzenia chłodniczego należy
A. usunąć olej chłodniczy z układu i napełnić układ azotem.
B. uniemożliwić ucieczkę czynnika chłodniczego z układu do atmosfery.
C. umożliwić odparowanie czynnika chłodniczego z układu do atmosfery.
D. zdemontować również skraplacz i napełnić układ azotem.
Wykonywanie robót związanych …
Na rysunku przedstawiono

A. przekaźnik czasowy.
B. wyłącznik silnikowy.
C. stycznik jednofazowy.
D. wyłącznik różnicowo-prądowy.
Wykonywanie robót związanych …
Moduł instalacji klimatyzacyjnej przedstawiony na ilustracji przeznaczony jest do

A. nawilżania parowego powietrza.
B. jonizacji powietrza.
C. osuszania powietrza.
D. dezynfekcji powietrza.
Wykonywanie robót związanych …
Przed przystąpieniem do montażu klimatyzatora typu Split należy w pierwszej kolejności
A. podłączyć zasilanie elektryczne do jednostki zewnętrznej i wewnętrznej.
B. zamontować stelaż pod jednostkę zewnętrzną i wewnętrzną.
C. zdjąć zaślepki z rur jednostki zewnętrznej i wewnętrznej.
D. wybrać miejsce zamontowania jednostki zewnętrznej i wewnętrznej.
Wykonywanie robót związanych …
W przedstawionym na schemacie fragmencie instalacji glikolowej zastosowano

A. 2 trójniki, 6 kolan, 4 mufy.
B. 6 trójników, 4 kolana, 2 mufy.
C. 4 trójniki, 6 kolan, 2 mufy.
D. 6 trójników, 2 kolana, 4 mufy.
Wykonywanie robót związanych …
Który zestaw wyposażenia jest niezbędny do właściwego zdemontowania niesprawnego klimatyzatora ściennego typu Split, napełnionego czynnikiem chłodniczym?
A. Pompa próżniowa, zestaw manometrów, butla na czynnik chłodniczy, zestaw narzędzi monterskich.
B. Stacja do odzysku czynnika chłodniczego, butla na czynnik chłodniczy, którym jest napełniony klimatyzator, zestaw narzędzi monterskich.
C. Przecinarka do rurek miedzianych, zestaw narzędzi monterskich, giętarka do rur, zestaw manometrów.
D. Palnik gazowy do demontażu miedzianych rurociągów chłodniczych, przecinarka do rur miedzianych, zestaw narzędzi monterskich.
Wykonywanie robót związanych …
Na ilustracji przedstawiono połączenie rur miedzianych wykonane metodą

A. zaprasowywania.
B. gwintowania.
C. lutowania twardego.
D. lutowania miękkiego.
Wykonywanie robót związanych …
Na ilustracji przedstawiono łączenie rur miedzianych z wykorzystaniem

A. zgrzewania złączy.
B. lutowania twardego.
C. lutowania elektrycznego.
D. systemu Lokring.
ELE.03 Pytanie 61
Wykonywanie robót związanych …
Przedstawiony na rysunku element sterujący klimatyzatora służy do regulacji

A. ciśnienia powietrza.
B. temperatury powietrza.
C. wilgotności bezwzględnej powietrza.
D. wilgotności względnej powietrza.
Wykonywanie robót związanych …
Po wymianie w urządzeniu chłodniczym rurki kapilarnej należy w pierwszej kolejności sprawdzić
A. szczelność układu.
B. zawartość czynnika w układzie.
C. średnicę rurki kapilarnej.
D. napięcie w sieci zasilającej.
Wykonywanie robót związanych …
Na podstawie danych zamieszczonych w tabeli wskaz manometr, który należy zamontować na przyłączu 1/8" między sprężarką a skraplaczem układu chłodniczego pompy ciepła z czynnikiem chłodniczym R410A.

A. I.
B. III.
C. IV.
D. II.
Wykonywanie robót związanych …
Na rysunku przedstawiono schemat podłączenia elementów instalacji chłodniczej do zacisków elektrycznych. Do których zacisków należy podłączyć układ napędu silnika sprężarki?

A. 11 i 12
B. 16 i 17
C. 14 i 15
D. 12 i 13
Wykonywanie robót związanych …
Element przedstawiony na rysunku montowany jest na instalacji w celu

A. połączenia rurociągów instalacji pod kątem mniejszym niż 90°.
B. połączenia w instalacji rurociągów wykonanych w systemie metrycznym i calowym.
C. stłumienia pochodzących od sprężarki drgań instalacji chłodniczej.
D. wykonania w instalacji połączenia rozłącznego rurociągów.
Wykonywanie robót związanych …
Który rysunek przedstawia prawidłowy sposób zamocowania czujnika termostatycznego zaworu rozprężnego?
A.

B.

C.

D.

Wykonywanie robót związanych …
Przewody instalacji wentylacyjnej i klimatyzacyjnej prowadzące z pomieszczenia zagrożonego wybuchem nie mogą być
A. wyposażone w czujniki dwutlenku węgla.
B. wyprowadzone na zewnątrz obiektu.
C. wyposażone w amoniakalne chłodnice powietrza.
D. połączone z innymi przewodami wentylacyjnymi.
Wykonywanie robót związanych …
Głównym celem stosowania izolacji przeciwwibracyjnej w instalacjach chłodniczych jest
A. wypoziomowanie agregatu.
B. przeciwdziałanie rozprzestrzenianiu się wibracji.
C. zabezpieczenie przed wilgocią.
D. przeciwdziałanie powstawaniu pleśni i grzybów.
Wykonywanie robót związanych …
Na rysunku przedstawiono sprężarkę

A. spiralną.
B. śrubową.
C. tłokową.
D. rotacyjną.
Wykonywanie robót związanych …
Równomierne pokrywanie się parownika (parowacza) warstwą szronu świadczy
A. o prawidłowej pracy presostatu różnicowego.
B. o uszkodzeniu zaworu termostatycznego.
C. o awarii sprężarki chłodniczej.
D. o prawidłowej pracy parownika.
Wykonywanie robót związanych …
Na schemacie przedstawiono podłączenie silnika

A. jednofazowego z rozruchem rezystorowym.
B. trójfazowego w gwiazdę.
C. jednofazowego z rozruchem kondensatorowym.
D. trójfazowego w trójkąt.
Wykonywanie robót związanych …
W przedstawionym na rysunku termostatycznym zaworze wodnym czujnik temperatury montuje się na

A. dopływie wody do dochładzacza.
B. dopływie czynnika do sprężarki.
C. wypływie czynnika ze sprężarki.
D. wypływie wody ze skraplacza.
Wykonywanie robót związanych …
Ile wynoszą ciśnienie i temperatura zakończenia sprężania na przedstawionym obiegu agregatu chłodniczego?

A. 0,2 MPa, −37°C
B. 0,2 MPa, −30°C
C. 1,0 MPa, +30°C
D. 1,0 MPa, +8°C
Wykonywanie robót związanych …
W układzie chłodniczym, w którym agregat jest zamontowany zdecydowanie powyżej parownika (np. 5 m) w przypadku występujących problemów z powrotem oleju do sprężarki, należy
A. zamontować separator oleju za jednostką wewnętrzną.
B. wykonać syfon olejowy na rurociągu cieczowym za agregatem.
C. wykonać syfon olejowy na rurociągu gazowym pomiędzy sprężarką a parownikiem.
D. zamontować separator oleju na rurociągu cieczowym za agregatem.
Wykonywanie robót związanych …
Ciśnieniową próbę szczelności instalacji sprężarkowej pompy ciepła wykonuje się
A. suchym azotem.
B. skroplonym wodorem.
C. suchym wodorem.
D. skroplonym azotem.
Wykonywanie robót związanych …
Jaką powierzchnię wymiany ciepła powinien mieć parownik, jeżeli współczynnik przenikania ciepła dla parownika jest równy 800 W/(m²·K), moc chłodnicza parownika wynosi 4 kW, średnia różnica temperatur między czynnikiem chłodniczym, a środowiskiem chłodzonym 5 K?
A. 2,0 m²
B. 4,0 m²
C. 1,0 m²
D. 3,0 m²
Eksploatacja i organizacja ro…
Do płynnej regulacji prędkości obrotowej silnika trójfazowego napędzającego wentylatory centrali klimatyzacyjnej stosuje się
A. przełączniki gwiazda/trójkąt.
B. układy soft start.
C. układ emergency stop.
D. przemienniki częstotliwości.
Eksploatacja i organizacja ro…
Poprzez zastosowanie przetwornicy częstotliwości do regulacji prędkości obrotowej sprężarki uzyskuje się
A. zwiększenie prądu rozruchowego pobieranego przez silnik elektryczny sprężarki.
B. zmniejszenie prądu rozruchowego pobieranego przez silnik elektryczny sprężarki.
C. obniżenie napięcia zasilania silnika elektrycznego sprężarki.
D. zwiększenie napięcia zasilania silnika elektrycznego sprężarki.
Wykonywanie robót związanych …
Podczas czyszczenia odcinka kanału wentylacyjnego, pozostałe nieczyszczone kanały należy zabezpieczyć
A. wytwarzając nadciśnienie w kanałach niepodlegających czyszczeniu.
B. balonami ograniczającymi czyszczony odcinek kanału.
C. demontując ich połączenia z odcinkiem czyszczonym.
D. filtrami klasy HP montowanymi na łącznikach rurociągów.
Wykonywanie robót związanych …
Na którym rysunku przedstawiono prawidłowe ustawienie zaworów w oprawie do manometrów podczas dopełniania urządzenia chłodniczego czynnikiem chłodniczym w postaci pary w czasie pracy urządzenia chłodniczego?
A. Rysunek II.

B. Rysunek I.

C. Rysunek IV.

D. Rysunek III.
